SERVICIOS INMOBILIARIOS Y DE CONSTRUCCION

Since 1973

Parcela hotelera de 4.000m2 con espectaculares vistas al mar y a la bahía de roses

Referencia: 4574
890.000 €
Terreno - Roses

3130 m²

0

0

0

 

 

2000 metros
Parcela hotelera con preciosas vistas panorámicas al mar y a la bahía de Roses, en la Costa Brava. Terreno de 4.260 m2, en el cual se puede construir un hotel de hasta 3.130 m2.
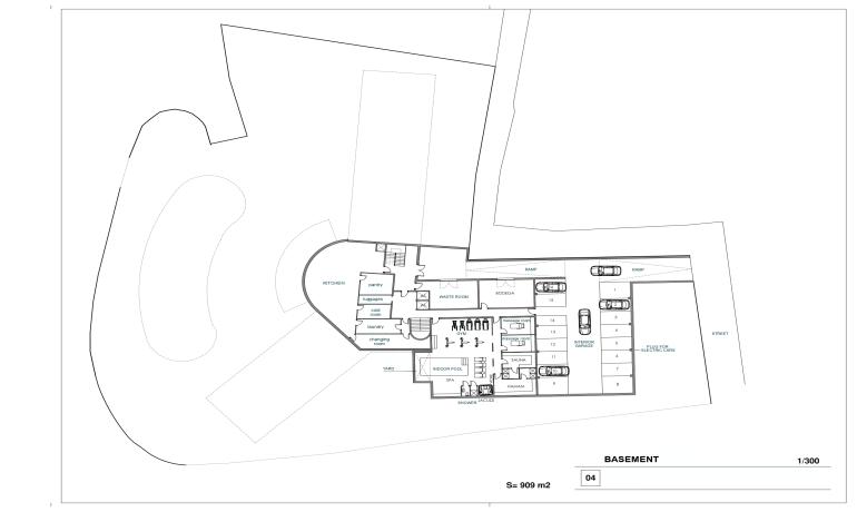
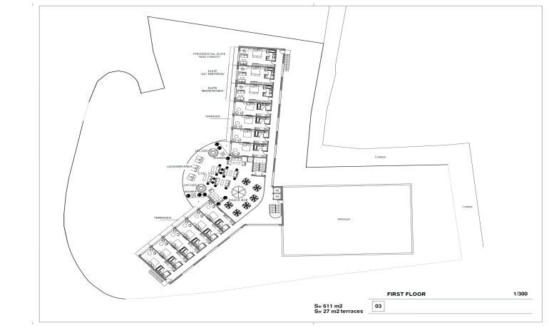
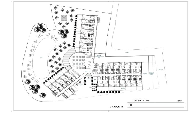
El terreno tiene una superficie de 2.130m2 edificables sobre rasante, distribuidos en una planta baja y una planta superior, más unos 1000m2 en planta sótano que no contabilizan para la edificabilidad (total 3.130 m2).
En el solarium de la azotea del hotel se podría construir un espacio lounge con vistas al mar. En el sótano se podrían construir las cocinas, parking, spa, gimnasio... así estos espacios no contarán como m2 construidos.
Ubicado a 5 minutos del casco urbano y de la playa de Roses. Zona residencial tranquila y segura, formada casi en su totalidad por casas, chalets y villas de calidad.
Gracias a su ubicación privilegiada, ofrece vistas panorámicas al mar, a la bahía de Roses, a los parques naturales de Cap de Creus y Els Aïguamolls, a los Pirineos, y a varias poblaciones del Alt Empordà como Castelló d' Empuries, Empuriabrava, L'Escala, Figueres...
Esta parcela es el lugar ideal para abrir un hotel en Roses. Disponer en Roses de un terreno en el cual poder construir un hotel es una oportunidad única en la ciudad. Los vecinos de la urbanización conforman una clientela de calidad. Son eminentemente extranjeros procedentes de toda Europa: holandeses, franceses, belgas, británicos, alemanes... Es una zona muy demandada para alquiler turístico.
Esta parcela hotelera de 4.260 m2 se compone de varios terrenos, todos de un mismo propietario:
-Parcela principal: 2.470 m2
-Parcela de 400 m2 (zona de parking)
-Parcela de 336 m2
-Parcela de 625 m2
-Parcela de 429 m2 (actualmente un camino)
Tenemos disponible un anteproyecto explicativo con infografías, en línea con la actual normativa urbanística del ayuntamiento. Solicitar y lo enviamos. Tenemos a disposición un tour virtual, así como vídeo.